NEWBUD
+48 601 687 209 | biuro@nieruchomosci-max.pl
INWESTYCJE
Rakoniewice ul. Kamińskiego

Prezentacja nieruchomości

 
Do sprzedaży nowe domy piętrowe w stanie deweloperskim (rynek pierwotny).
Inwestycja zlokalizowana jest w Rakoniewicach przy ul. Kamińskiego (Gmina Rakoniewice, Powiat Grodzisk Wielkopolski, województwo Wielkopolskie).

Segmenty piętrowe wybudowane na działce z dostępem jedynie dla ich mieszkańców (małe osiedle zamknięte). Cały teren wykostkowany. Przewidziano miejsca parkingowe oraz plac zabaw dla najmniejszych.
Teren zamknięty z bramą na pilot.

Domy wybudowane na tzw. mijankę zapewniając tym samym prywatność podczas relaksowania się na tarasie. Domy piętrowe o powierzchni 71,07 m2 , z własnym balkonem oraz wyjściem na taras.
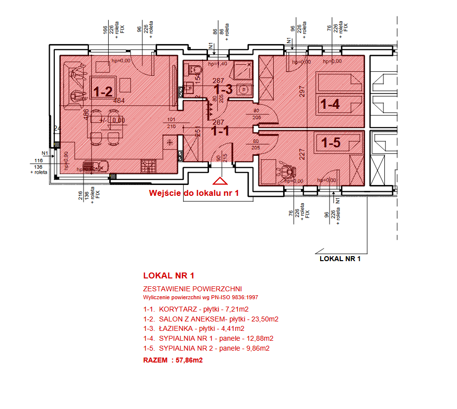
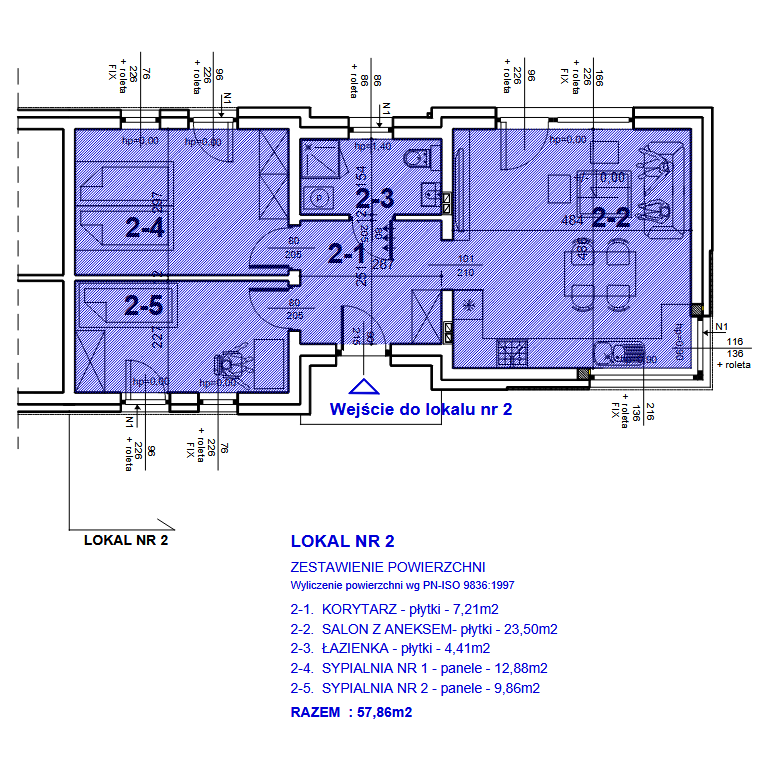
Budynku zaprojektowane z myślą o wygodzie i ergonomii użytkowania codziennego, składające się z następujących pomieszczeń:

Parter: Wiatrołap, korytarz, WC, skrytka, przestronny salon z aneksem kuchennym
i wyjściem na taras.
Piętro: 2 pokoje i łazienka.
Już 6 segmentów zostało sprzedane, a przedostatni jest w trakcie finalizacji zakupu. Na powyższym planie można zapoznać się informacją, które segmenty są aktualnie dostępne. Zapraszamy wszystkich zainteresowanych do kontaktu telefonicznego bądź osobistego w naszym biurze nieruchomości w Wolsztynie. Poniżej prezentujemy Państwu krótki film ze spaceru po inwestycji. W chwili obecnej większość prac jest skończona, czekamy ostateczne sprzątnięcie terenu, aby przedstawić segmenty na fotografiach w całej swojej okazałości prezentujące wszystkie zalety, których nie brakuje. 

Zachęcamy również do pobrania pliku PDF (prospekt informacyjny) zawierający wszelkie informacje dot. powyżej inwestycji.

 liczba odwiedzin: 150797      online: 1